See your space clearly before the transformation begins
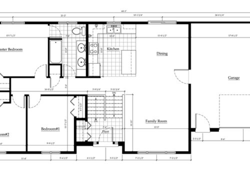
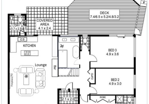
A great design starts with a great plan — and nothing brings clarity to a project like a professionally drawn floor plan. Our floor plan creation service gives you an accurate, easy‑to‑understand layout of your space, helping you visualise possibilities, make confident decisions, and move forward with your project feeling fully informed.
Why Floor Plans Matter
Whether you’re renovating, redecorating, or building from scratch, a detailed floor plan is the foundation of a successful design. Our plans help you:
- Understand the true scale and flow of your rooms
- Explore layout options before committing
- Plan furniture placement with precision
- Identify opportunities to improve functionality
- Communicate clearly with builders, trades, and suppliers
It’s the perfect starting point for any interior design project.
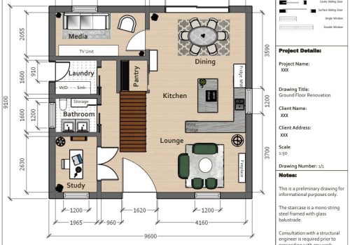
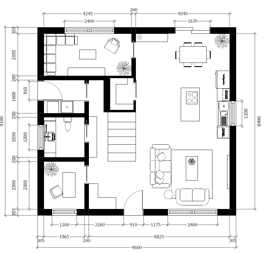
What You’ll Receive
Every floor plan is created with accuracy, clarity, and design insight. Depending on your needs, your plan may include:
- Scaled room layouts
- Furniture placement options
- Measurements and dimensions
- Traffic flow and zoning
- Multiple layout variations
- Digital files ready for sharing with trades
We tailor each plan to suit your home, your lifestyle, and your design goals.
Ideal for Homeowners, Renovators & Property Professionals
Our floor plan service is perfect for:
- Homeowners wanting clarity before redesigning
- Renovators planning structural or layout changes
- Investors preparing a property for sale
- Developers needing clean, professional layouts
- Anyone who wants to make smart, confident design decisions
If you’re dreaming of a new look, a floor plan is the smartest place to start.
Ready to Map Out Your Space
?
Let’s turn your ideas into a clear, functional plan that sets your project up for success. Get in touch to begin your personalised floor plan.



